Powerdrive PL * Sistema de portas de correr lineares automático para portas grandes e pesadas com peso de folha até 200 kg
- Acionamento muito poderoso para folhas de porta grandes e pesadas, e grandes amplitudes de abertura
- Conectável e integrável na automação de edifícios através de padrão aberto (BACnet)
- Deteção de erros e registo automáticos
- Possibilidades de ajuste para todos os parâmetros de movimentos da porta
- Entradas e saídas livremente parametrizáveis para diferentes funções
- Bateria integrada para uma abertura e fecho de emergência no caso de falha de corrente
Áreas de aplicação
- Sistemas de portas de correr de uma e duas folhas
- Portas interiores e portas exteriores de passagem frequente
- Possibilidade de amplitudes de abertura de 700 a 3 000 mm
- Pesos das folhas das portas até 200 kg cada
- Os sistemas perfilados adequados são sistemas de perfilaria fina com vidro ISO e vidro mono, perfil de aperto ESG, arquitrave no local e folha de madeira
- Adequados para diferentes sistemas perfilados
Situações de montagem em objetos de referência e vídeos
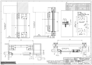
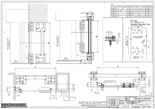
Especificações do produto
| Powerdrive PL | |
| Para sistemas de portas de 1 folha | Sim |
| Para sistemas de portas de 2 folhas | Sim |
| Vidro ISO com perfilaria fina | Sim |
| Vidro MONO com perfilaria fina | Sim |
| Perfil de aperto ESG | Sim |
| Folha do caixilho (no local) | Sim |
| Folha de madeira (fornecida por parte do cliente) | Sim |
| Altura | 150 mm |
| Profundidade | 185 mm |
| Peso da folha (máx.) 1 folha | 200 kg |
| Peso da folha (máx.) 2 folhas | 200 kg |
| Amplitude de abertura, 1 folha | 700 mm - 3000 mm |
| Amplitude de abertura, 2 folhas | 800 mm - 3000 mm |
| Temperatura de serviço | -15 - 50 °C |
| Tipo e grau de proteçao | IP20 |
| Separação da rede elétrica | Interruptor geral no automatismo |
| Conformidade com as normas | DIN 18650, DIN EN ISO 13849: Nível de desempenho D, EN 16005 |
Transferências
Variantes & Material de fixação
* Aviso sobre os produtos expostos
Os produtos acima mencionados podem variar em forma, tipo, caraterísticas e função (conceção, dimensões, disponibilidade, homologações, normas, etc.) dependendo do país. Em caso de perguntas, por favor contacte a sua pessoa de contacto GEZE ou envie-nos um E-Mail .