Tirante TS 1500 / 1000 C * Tirante standard
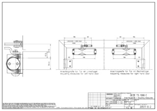
- Para profundidade da ombreira até 50 mm
Áreas de aplicação
- Portas de encosto à direita e à esquerda
Especificações do produto
| Tirante TS 1500 / 1000 C | |
| Imobilização | Não |
Transferências
Variantes & Material de fixação
* Aviso sobre os produtos expostos
Os produtos acima mencionados podem variar em forma, tipo, caraterísticas e função (conceção, dimensões, disponibilidade, homologações, normas, etc.) dependendo do país. Em caso de perguntas, por favor contacte a sua pessoa de contacto GEZE ou envie-nos um E-Mail .