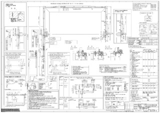
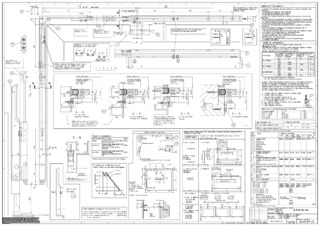
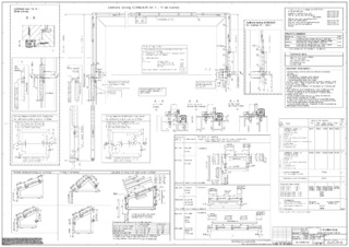
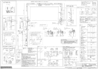
OL 95

Scissors OL 95 * Scissors OL 95 without leaf bracket

OL 95 open Surface-mounted Slimline fanlight opener for vertically installed rectangular windows with an opening width of 220 mm
  • Achieves the full opening width of 220 mm for all leaf heights
  • Little space necessary thanks to flat design of the scissors
  • Locking in the scissors guarantees a safe leaf locking mechanism
  • Unhinging inhibitor and lockable hand lever offer additional safety
  • Scissor unhooking by pressing the release button facilitates window cleaning from inside and outside
  • Completely pre-mounted assembly groups facilitate installation
Contact us

Application Areas

  • Ventilation of rooms and stairways
  • Mullion-transom construction due to smaller overall height
  • Inward-opening rectangular windows with bottom-hung, top-hung, side-hung and centre pivoted leaves
  • Installation on wooden, PVC or metal windows
  • Leaf installation

Technical data

Scissors OL 95
Leaf width (min.) 440 mm
Leaf height (min.) 350 mm
Leaf weight (max.) 60 kg
Space needed (max.) 21 mm

Downloads

Contact

GEZE Central +351-236-219-717